خانه / معماری / معرفی بناها / بناهای فرهنگی / کتابخانه مرکزی فونیکس

کتابخانه مرکزی فونیکس

phoenix central library (13)

کتابخانه فونیکس

آثار ویلیام برودر را در سبکی از معماری می توان طبقه بندی نمود که مختص معماران جنوب غربی ایالات متحده و همخوان با شرایط جغرافیایی و طبیعت خاص این منطقه می باشد. معماران شاخص این نوع معماری که برودر نیز تحت تاثیر آنها قرار دارد فرانک لوید رایت و آنتوان پرداگ می باشند. با این وجود پیداست که کارلو اسکارپا معمار معروف ایتالیایی نیز تاثیراتی بر معماری برودر داشته است.

دانلود پاورپوینت تحلیل و بررسی کتابخانه مرکزی فونیکس

نیاز به گسترش فعالیت های فرهنگی و ایجاد بستری در جهت تعاملات اجتماعی در شهر فونیکس در نیمه دهه نود میلادی پس از ان که شهر به مدت یک دهه به یکی از پرشتاب ترین شهرهای امریکا در جهت رشد و توسعه تبدیل گشته بود پررنگ گردید. یکی از موفق ترین اثار این دوره کتابخانه ایست که از لحاظ عملکردی با نیازهای موجود و از ان لحاظ اقلیمی با شرایط خاص ایالت آریزونا نظیر تابش شدید افتاب و دمای ۵۰ درجه در تابستان کاملا تطابق دارد.

phoenix central library (10)

phoenix central library (9)

phoenix central library (11)

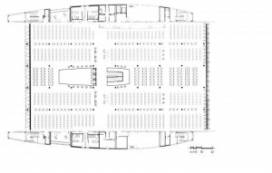
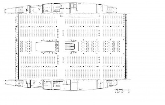
کتابخانه مرکزی فونیکس که اجرا و اماده سازی ان هفت سال به طول انجامید زیربنایی در حدود ۲۵ هزار متر مربع دارد و بالغ بر یک میلیون جلد کتاب را در خود جای داده است. شاخصه برجسته این بنا تنوع نورگیرهای عمودی و افقی است که در سطوح نما جهت کنترل تابش مستثیم خورشید نصب شده اند. کتابخانه درپنج طبقه سامان دهی شده که طبقه همکف شامل فعالیت های عمومی نظیر تجاری، سالن تئاتر و کافه است. تاثیرگذارترین فضای داخلی مجموعه فضای مطالعه در طبقه پنجم با مساحت چشم گیر ۴هزار مترمربع است که به دلیل چشم اندازش معمار از ان به عنوان اتاق شهر نام می برد. دسترسی به این فضای وسیع به وسیله ی اسانسورهای شیشه ای و پلکان تندیس گونه ای که ترکیبی از فلز، بتن و شیشه مات است میسر گردیده است. در مرکز بنا آتریومی به ارتفاع پنج طبقه قرار دارد که ارتباط عمودی اصلی بنا در ان ساماندهی شده و برودر از ان با عنوان دره کریستال نام برده است.

phoenix central library (2)

phoenix central library (6)

phoenix central library (1)

از جمله مهم ترین ایده های طراحی بنا فراهم اوردن بالاترین امکان دسترسی ازاد به کتاب ها برای مخاطبین بوده است که در نتیجه ان بنایی با پلانی ازاد و شبکه سازه ای منظمی به وجود امده است که ارایش فضایی سازه مکان قفسه های کتاب و مسیرهای دسترسی را نیز تعریف می کند. سیستم شبکه ستون ها به نحوی است که امکان گسترش پروژه در آینده را نیز فراهم اورده است همچنین در طبقات زیر زمین از ساماندهی مناسب ستون ها حداکثر فضای ممکن جهت پارک اتومبیل حاصل شده است. طبقه همکف شامل کتاب های کودکان، مجلات فرهنگی، فیلم و کتاب های داستانی می باشد. برودر طبقه همکف را به مرکز خرید کوچکی تشبیه می کند که نیاز های فرهنگی روزمره مردم عادی را برآورده می کند.

phoenix central library (12)

phoenix central library (4)

طبقه دوم کتاب های مرجع، رایانه های در دسترس عموم و اسناد دولتی را در خود جای داده است. طبقه سوم شامل دفاتر مدیریت و خدمات پشتیبانی سایرفضاهای غیر عمومی است. در طبقه چهارم کلکسیون های خاص و امکانات سخنرانی جانمایی شده است. در دو وجه شرقی و غربی بنا فرمی منحنی شکل به مستطیل اصلی بنا الحاق شده است که تمامی عملکردهای خدماتی نظیر پلکان های اضطراری، سرویس ها و تجهیزات مکانیکی و الکترونیکی را در خود جای داده است. این دوحجم در واقع به مثابه عایقی در برابر اشعه تند خورشید برای فضاهای اصلی کتابخانه عمل می کنند. شیشه های مات در نمای شمالی و جنوبی نیز مقدار روشنایی لازم برای مطالعه و دید از داخل به چشم انداز شهر را میسر می سازند. تابش خورشید از شمال شرقی و شمال غربی توسط پارچه هایی سفید رنگ که همانند بادبان بر روی بدنه شمالی نصب شده و جلوه های متفاوت در این نما را ایجاد می کنند کنترل می شود. در جبهه شمالی نیز سایبان هایی آلومینیومی قرار دارند که حرکت آنها توسط برنامه های کامپیوتری کنترل شده و زوایای انها متناسب با مسیر تابش خورشید تغییر می کنند.

phoenix central library (7)

phoenix central library (5)

منبع:

مجموعه کتب عملکردهای معماری

پروژه ها مرجع تخصصی دانلود پروژه های مهندسی

درباره ی ادمین

۲ دیدگاه

  1. با تشکر از مطلب خوبتون

دیدگاهتان را بنویسید

نشانی ایمیل شما منتشر نخواهد شد. بخش‌های موردنیاز علامت‌گذاری شده‌اند *