خانه / دانلود / دانلود نقشه های اتوکد ۷ ساختمان مسکونی

دانلود نقشه های اتوکد ۷ ساختمان مسکونی

دانلود نقشه های اتوکد ۷ ساختمان مسکونی

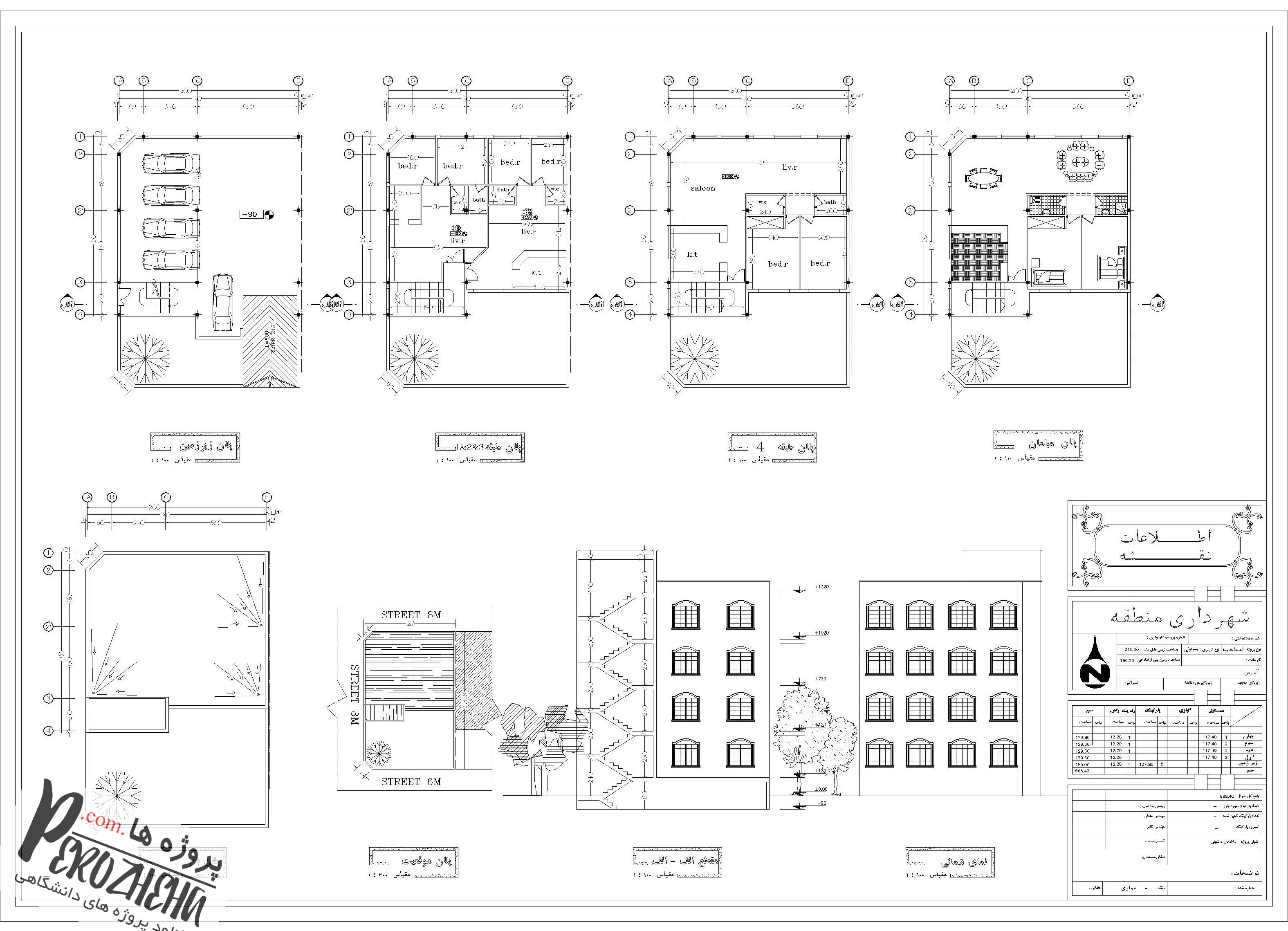
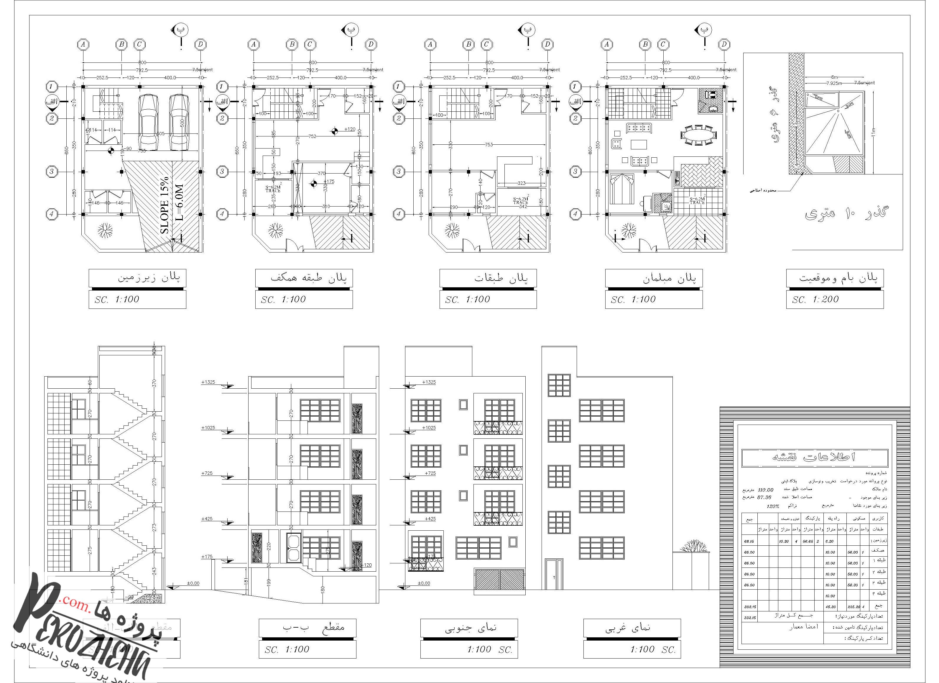
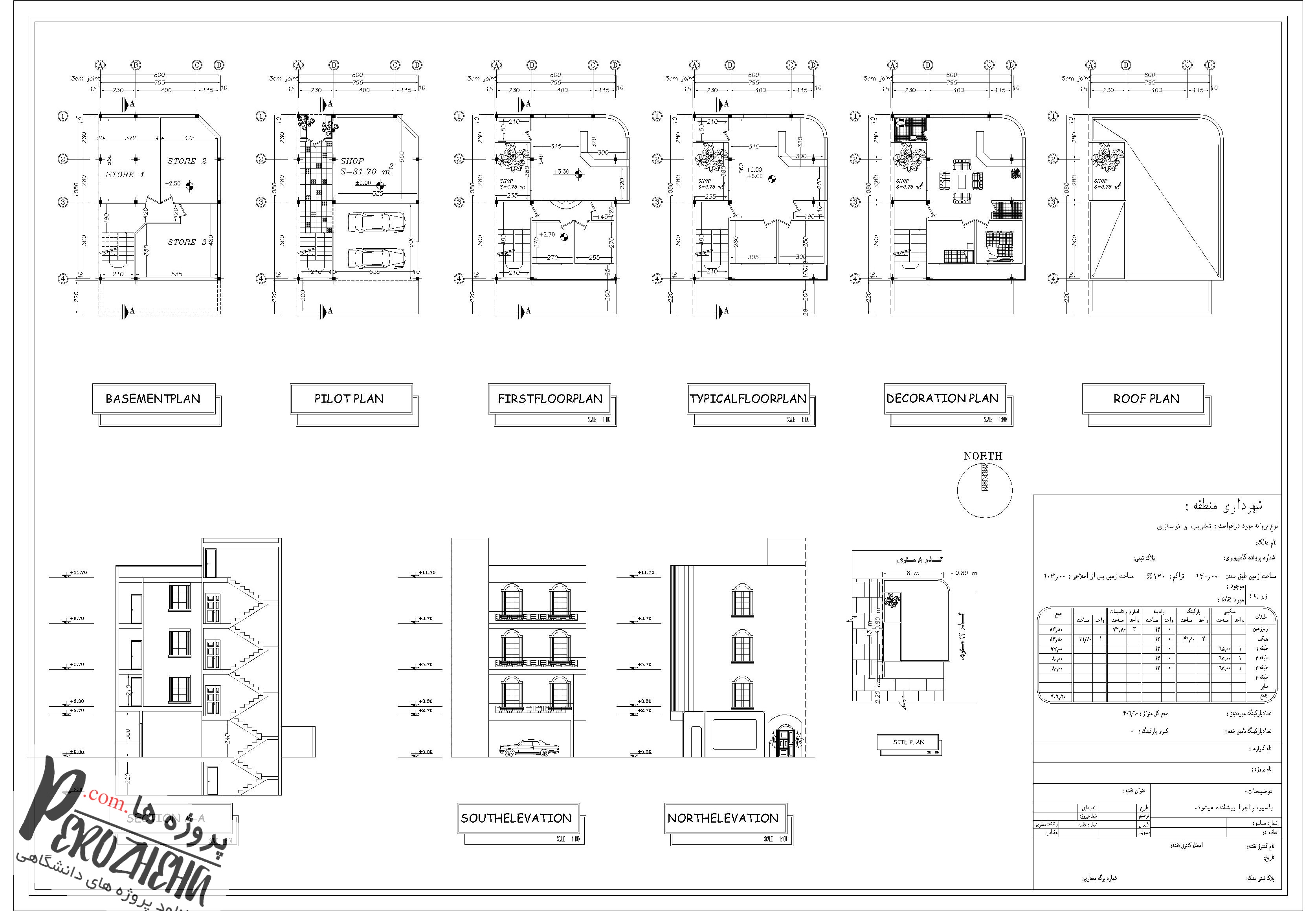
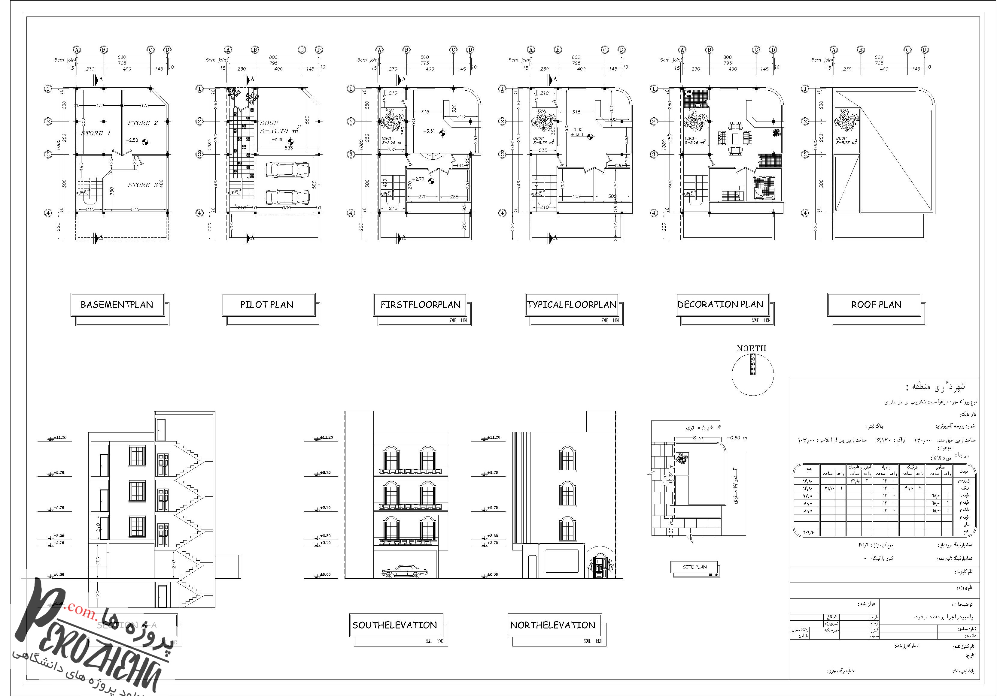
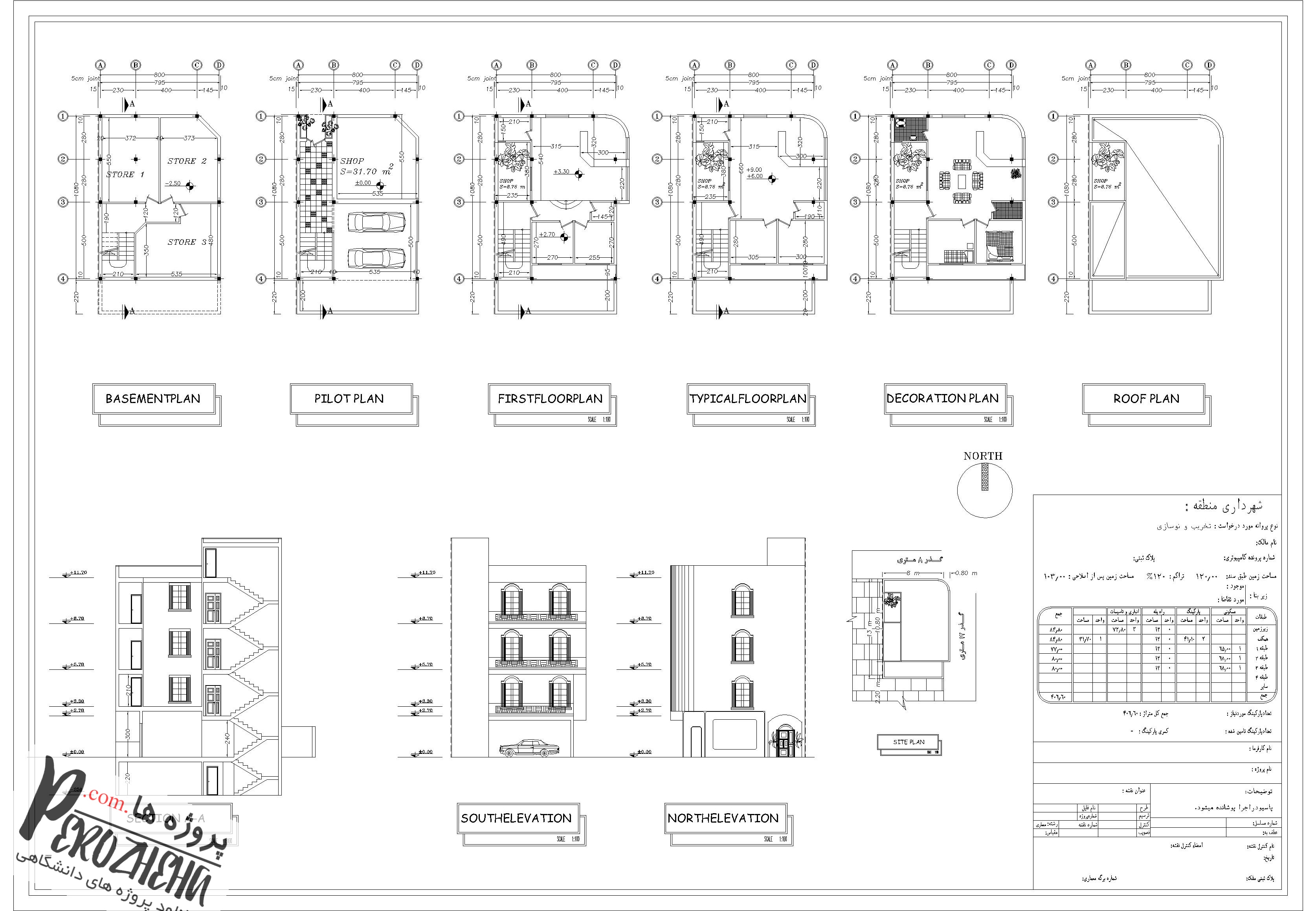
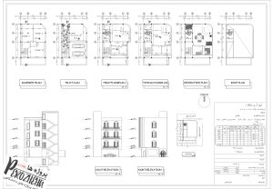
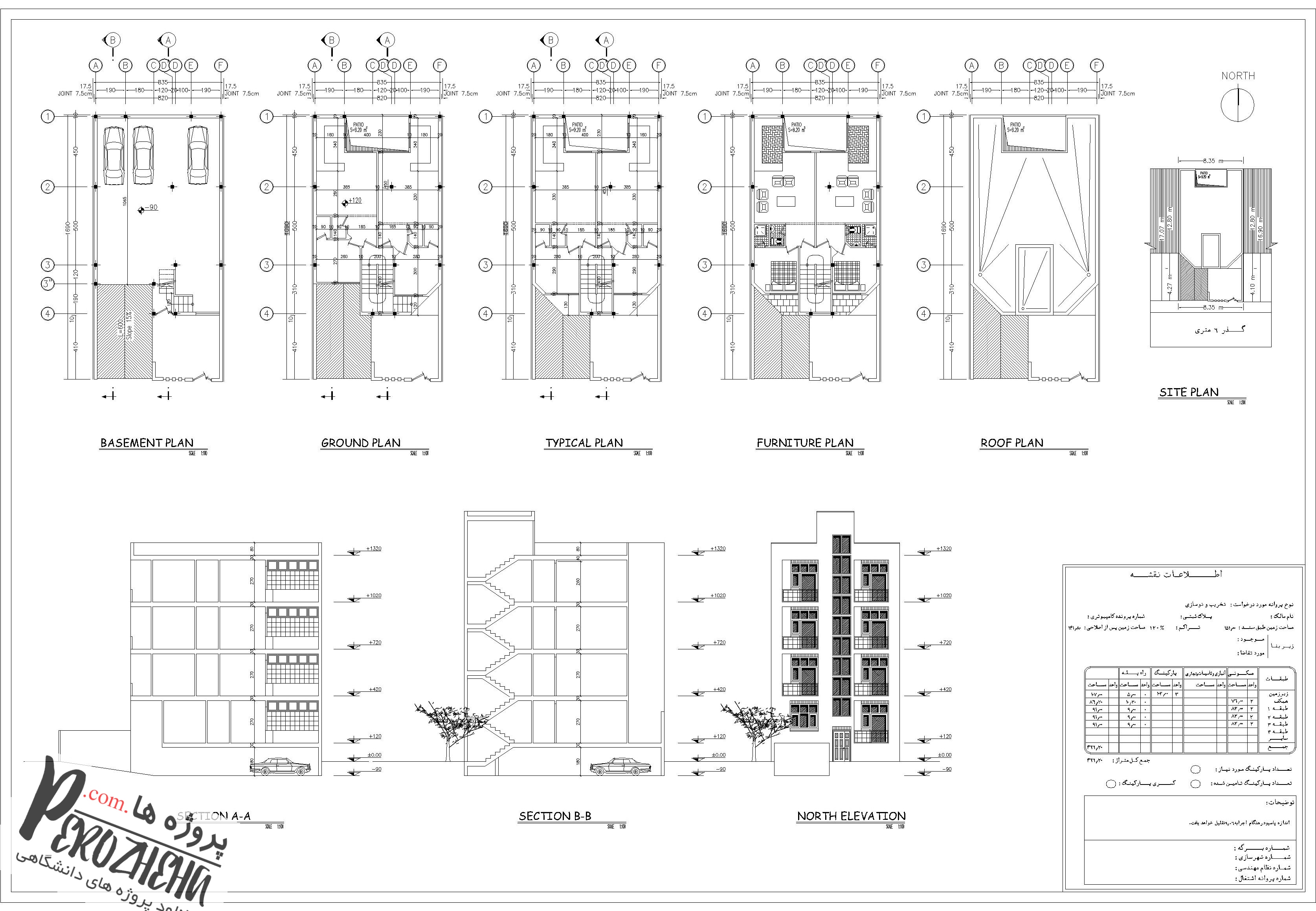
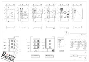
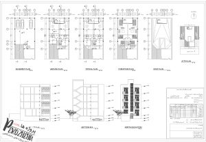
دانلود نقشه های اتوکد ۷ ساختمان مسکونی شامل نقشه های معماری ۷ ساختمان مسکونی مختلف را قرار داده ایم که اجرا شده می باشند و دارای ضوابط کامل شهرداری و نظام مهندسی هستند این فایل مناسب برای مهندسین عزیز جهت استفاده در پروژه های خود و همچنین دانشجویان محترم می باشد که توسط تیم تحریریه سایت پروژه ها تنظیم و تهیه شده است. در تصاویر زیر نقشه های هر ۷ پروژه قابل روئیت می باشد که پس از دانلود، فایل اتوکد این نقشه ها در اختیار شما قرار خواهد گرفت.

 

پروژه اول:

دانلود نقشه های اتوکد 7 ساختمان مسکونی

 

پروژه دوم:

دانلود نقشه های اتوکد 7 ساختمان مسکونی

 

پروژه سوم:

دانلود نقشه های اتوکد 7 ساختمان مسکونی

 

پروژه چهارم:

دانلود نقشه های اتوکد 7 ساختمان مسکونی

 

پروژه پنجم:

دانلود نقشه های اتوکد 7 ساختمان مسکونی

 

پروژه ششم:

دانلود نقشه های اتوکد 7 ساختمان مسکونی

 

پروژه هفتم:

دانلود نقشه های اتوکد 7 ساختمان مسکونی

درباره ی amirhossein

مهندس معماری طراحی داخلی و طراح نما

همچنین ببینید

تاثیر پروتئین های هیدرولیز شده ضایعات کشتارگاهی طیور بر سطح باکتری های روده و بقا در لارو قزل آلا در مواجهه با آئروموناس سالمونیسیدا

نکات خلاصه شده درس بیماری های ماهی

  نکات خلاصه شده درس بیماری های ماهی بیماری یک پدیده غیر عادی است که …

دیدگاهتان را بنویسید

نشانی ایمیل شما منتشر نخواهد شد. بخش‌های موردنیاز علامت‌گذاری شده‌اند *