خانه / دانلود / دانلود پلان مجموعه ورزشی فاز دو

دانلود پلان مجموعه ورزشی فاز دو

دانلود پلان مجموعه ورزشی فاز دو

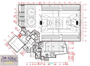
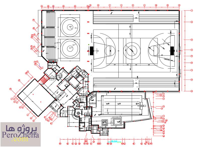
پلان مجموعه ورزشی فاز دو

 

این فایل به صورت DWG و کامل می باشد.

فضاهای ورزشی محلات در شهرها باید کاربری ورزشی داشته باشد و حداقل محصور شده و کف سازی و زیرسازی شده و سرویس های بهداشتی و یا رختکن در آنها مهیا باشد . ذکر فضاهائی که برای تفریح در پارکها برای یک رشته ورزشی مشخص می شود و با تغییر سلائق مدیریتی کاربری و استفاده از آنها به غیر ورزشی تغییر می یابد و یا مسیرها  که برای راهپیمائی و ورزش های همگانی ( دوها و نرمش ها ) مورد استفاده قرار میگیرند مورد نظر نیست .

محدوده این مجموعه با فضای روباز ورزشی و فضاهای پشتیبانی جنبی و پله های تماشاچی بعنوان زیربنا و مساحت مکان ورزشی منظور می گردد . اگر این مکان در مجموعه ای ورزشی قرار دارد محدوده ای که در مراجعه به آن ذکر نام مکان می شود .بعنوان مساحت یا زیربنای فضای ورزشی روباز تلقی میگردد . مثلاً در مجموعه بزرگ آزادی تهران –عنوان می شود که به استادیوم صدهزار نفری رفتیم – یا به سالن ۱۲ هزار نفری مراجعه شد و یا در پیست دوچرخه سواری حاضر بودیم از ذکر فضاهای دسترسی و پارکینگ فضای سبز بعنوان فضای ورزشی خودداری فرمائید یا عنوان فرمائید مساحت کل مجموعه ورزشی چقدر است و زیر مجموعه های احداثی در آن را معلوم فرمائید . در این صورت مشخص می شود که بقیه مساحت یا در برنامه های آینده به فضاهای سرپوشیده و روباز تبدیل می شود و یا بعنوان فضاهای پشتیبانی – راههای دسترسی و فضای سبز از آن استفاده می شود . مساحت این مکانها ، سطح اشغال زمین آنها است و اگر بنا برضرورت از زیر پله آن استفاده های مختلف ورزشی می شود و در نقشه های اولیه طراحی شده این فضاها تعریف نشده اند فقط ذکر یک مساحت کافی است.

این فایل شامل:

پلان اندازه گذاری

پلان مبلمان

۲ نما

۲برش

پلان تیر ریزی

پلان فنداسیون

پرسپکتیو داخلی

دتایل های مورد نیاز

تصاویری از این پروژه:

 

پلان مجموعه ورزشی فاز دو (6)

پلان مجموعه ورزشی فاز دو (9)

پلان مجموعه ورزشی فاز دو

پلان مجموعه ورزشی فاز دو (8)

درباره ی ادمین

همچنین ببینید

تاثیر پروتئین های هیدرولیز شده ضایعات کشتارگاهی طیور بر سطح باکتری های روده و بقا در لارو قزل آلا در مواجهه با آئروموناس سالمونیسیدا

نکات خلاصه شده درس بیماری های ماهی

  نکات خلاصه شده درس بیماری های ماهی بیماری یک پدیده غیر عادی است که …

دیدگاهتان را بنویسید

نشانی ایمیل شما منتشر نخواهد شد. بخش‌های موردنیاز علامت‌گذاری شده‌اند *